Get a free valuation

Get an instant valuation here or contact one of our offices

Photos Slideshow
Area Map Street View Schools Floorplan

3 Bedroom Bungalow - Detached  For Sale in Theydon Bois £625,000

3 Bedrooms | 1 Bathroom | 2 Receptions

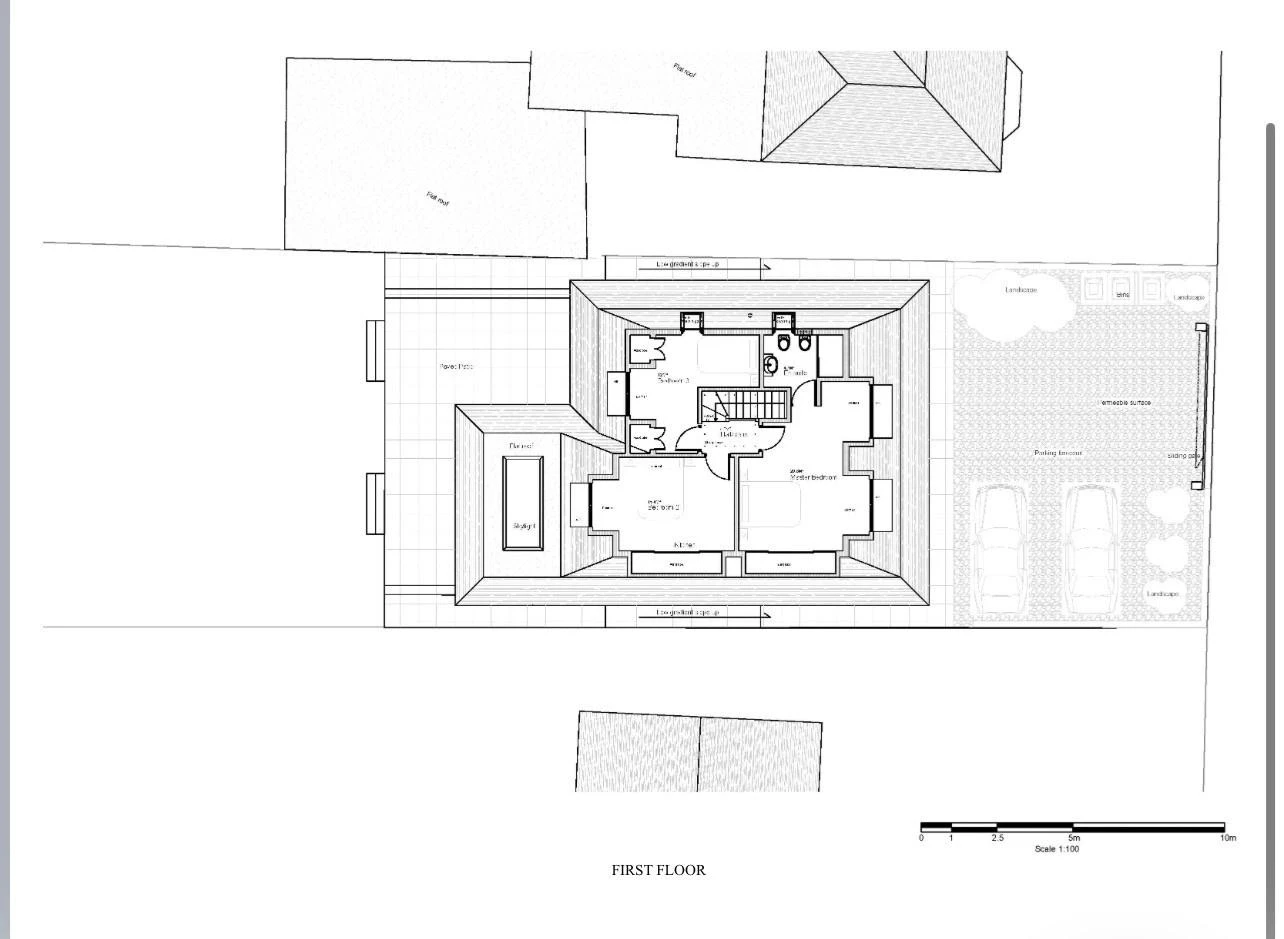
Designed with modern family living in mind, the approved plans (shown in floorplans 1 and 2) provide for a spacious and versatile layout, including a principal bedroom with en suite, three further bedrooms, kitchen, living and dining room, additional reception room, utility room, and family bathroom.

Interested parties are advised to consult the Epping Forest planning portal for full details of the approved application and to carry out their own independent enquiries prior to purchase.

The existing property sits on a good-sized plot enjoying far-reaching countryside views, and currently comprises a three-bedroom bungalow (shown in floorplan 3), featuring a large living room, kitchen/diner, and family bathroom.

Externally, the property benefits from a large garden and currently includes an outbuilding with kitchen area and shower room, as well as a further outbuilding. Under the approved planning consent, the first outbuilding is to be demolished as part of the redevelopment.

Enjoying wonderful countryside outlook to the front toward the end of a private un-adopted lane on the edge of Theydon Bois village. Theydon Park Road is a popular residential turning well placed for local amenities. The village offers a selection of shops, pubs, restaurants and excellent access into London. There are several well regarded state and private schools within easy reach and an established golf club.

Floor Plan 1

Stamp Duty Land Tax

See full breakdown

Total SDLT due

Below is a breakdown of how the total amount of SDLT was calculated

Up to £0k (Percentage rate 0 %)

Above £0k and up to £0k (Percentage rate 0 %)

Above £0k and up to £0k (Percentage rate 0 %)

Above £0k and up to £0k (Percentage rate 0 %)

Above £0k and up to £0m (Percentage rate 0 %)

Above £om (Percentage rate 0 %)

Please note: This is for illustrative purposes only. The above calculator should not be relied upon when making financial decisions. Please seek advice from a specialist financial provider.

Mortgage Details

Results

IMPORTANT NOTICE

Descriptions of the property are subjective and are used in good faith as an opinion and NOT as a statement of fact. Please make further specific enquires to ensure that our descriptions are likely to match any expectations you may have of the property. We have not tested any services, systems or appliances at this property. We strongly recommend that all the information we provide be verified by you on inspection, and by your Surveyor and Conveyancer.

Customer reviews

The service provided by the entire team at Butler and Stag is fantastic. From purchasing a plot, to the sale of the properties was run fantastically. Very professional outfit and a pleasure to work with. We certainly will be using Butler and Stag again in the near future. Matthew Hammond

Read more reviews
Our office Google reviews

Our office Google reviews

★★★★★ 4.9 Bow (London Office)

★★★★★ 5.0 Theydon Bois (West Essex Office)

★★★★★ 5.0 Buckhurst Hill Office

★★★★★ 5.0 Land & New Homes Office

Find your next property