Get a free valuation

Get an instant valuation here or contact one of our offices

Photos Slideshow
Area Map Street View Schools Floorplan

Loughton Lane, Theydon Bois, Epping, CM16 For Sale - Offers Over £550,000

4 Bedroom Land  For Sale in Theydon Bois Offers Over £550,000

4 Bedrooms | 4 Bathrooms | 1 Reception

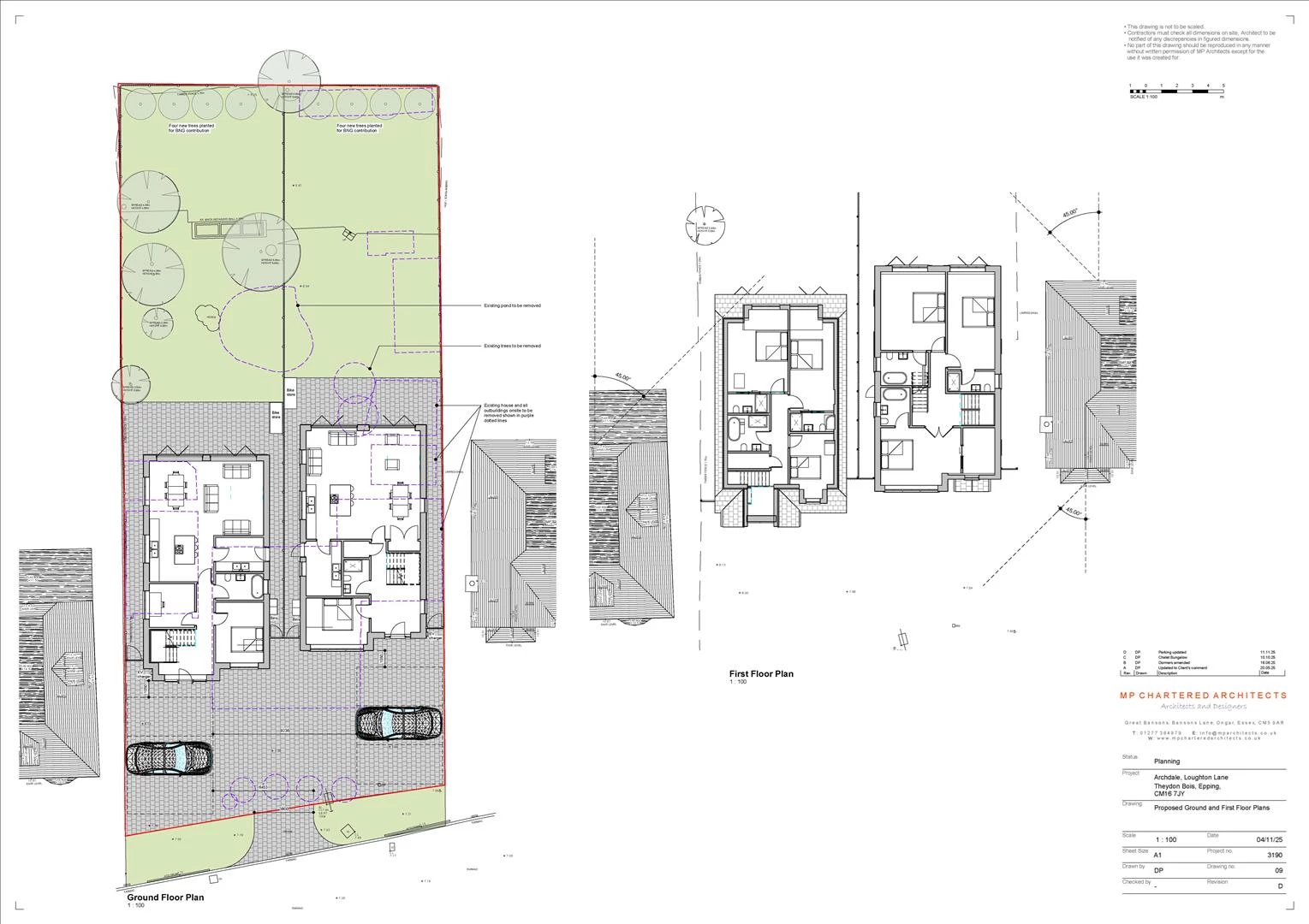
Our client currently owns a single dwelling on the site and has successfully secured planning consent for the demolition of the existing property and the construction of two new residential units. The opportunity being offered is to purchase the portion of the site benefiting from planning permission for one of these approved dwellings, a well-designed detached chalet bungalow.

The proposed unit has been thoughtfully planned to deliver generous, modern living accommodation across approximately 2,012 sq ft, offering a highly desirable layout suited to contemporary family living. The design balances strong kerb appeal with practical internal space, ensuring both market attractiveness and long-term value.

The development strategy presents a compelling advantage: demolition costs of the existing dwelling are to be shared with the current owner, with both approved units constructed simultaneously. This coordinated build programme offers efficiencies in procurement, contractor mobilisation, and overall project delivery, helping to optimise build costs and timescales.

Situated in the charming village of Theydon Bois, this site benefits from a picturesque setting while still offering convenient access to essential amenities.

Theydon Bois, situated on the edge of Epping Forest within the Essex borders, is approximately 20 miles northeast of Liverpool Street station. The village benefits from outstanding transport links, with Theydon Bois tube station providing direct Central Line services into London, making it ideal for commuters. The nearby M11 motorway and M25 motorway offer convenient road connections to London, Stansted Airport, and the wider motorway network. Theydon Bois features a charming high street with a selection of independent shops, cafés, and traditional pubs, while more extensive shopping and leisure facilities can be found in nearby Loughton and Epping. With highly regarded schools, beautiful surrounding countryside, and a welcoming community atmosphere, Theydon Bois remains a highly sought-after village location.

This represents a rare opportunity to secure a fully consented, ready-to-deliver residential development in the highly sought-after village of Theydon Bois. Combining cost-sharing advantages with a clear and coordinated build strategy, the scheme offers an efficient and attractive proposition. Ideally suited to developers, investors, or bespoke home builders looking to deliver a well-positioned project in a prime village setting with strong and enduring market appeal.

Proposed Chalet Bungalow.png

Stamp Duty Land Tax

See full breakdown

Total SDLT due

Below is a breakdown of how the total amount of SDLT was calculated

Up to £0k (Percentage rate 0 %)

Above £0k and up to £0k (Percentage rate 0 %)

Above £0k and up to £0k (Percentage rate 0 %)

Above £0k and up to £0k (Percentage rate 0 %)

Above £0k and up to £0m (Percentage rate 0 %)

Above £om (Percentage rate 0 %)

Please note: This is for illustrative purposes only. The above calculator should not be relied upon when making financial decisions. Please seek advice from a specialist financial provider.

Mortgage Details

Results

IMPORTANT NOTICE

Descriptions of the property are subjective and are used in good faith as an opinion and NOT as a statement of fact. Please make further specific enquires to ensure that our descriptions are likely to match any expectations you may have of the property. We have not tested any services, systems or appliances at this property. We strongly recommend that all the information we provide be verified by you on inspection, and by your Surveyor and Conveyancer.

Customer reviews

The service provided by the entire team at Butler and Stag is fantastic. From purchasing a plot, to the sale of the properties was run fantastically. Very professional outfit and a pleasure to work with. We certainly will be using Butler and Stag again in the near future. Matthew Hammond

Read more reviews
Our office Google reviews

Our office Google reviews

★★★★★ 4.9 Bow (London Office)

★★★★★ 5.0 Theydon Bois (West Essex Office)

★★★★★ 5.0 Buckhurst Hill Office

★★★★★ 5.0 Land & New Homes Office

Find your next property